
美国尼科NICO进口一体化高温变送器可直接安装在热电偶、热电阻的接线盒内与之形成一体化结构。热电偶、热电阻温度变送器仪表中的现场安装式温度变送器单元,与工业热电偶、热电阻配套使用,它采用二线制传输方式(两根导线作为电源输入和信号输出的公用传输线)。将工业热电偶、热电阻信号转换成与输入信号或与温度信号成线性的4-20mA、0-10mA的输出信号。该温度变送器可直接安装在热电偶、热电阻的接线盒内与之形成一体化结构。它作为新一代测温仪表可广泛应用与冶金、石油、化工、电力、轻工、纺织、食品、国防以及科研等工业部门。
●高温变送器利用液体静压力的测量原理工作。该变送器利用液体静压力的测量原理工作。它一般选用硅压力测压传感器将测量到的压力转换成电信号,再经放大电路放大和补偿电路补偿,再经放大电路放大和补偿电路补偿,最后以4~20mADC电信号输出。
●一体化高温变送器能有实际的真空,而是在电路处理环节上进行调整以获得绝对压力。表压测量变送器相对于大气压力测量,相当于P2参考大气压力参考大气压力P0。相对于大气压力测量,相当于参考大气压力。现场大部分的压力测量是这种情况,例如主蒸汽压力测量等。测量是这种情况,例如主蒸汽压力测量等。差压测量变送器差压测量变送器主要分为液位测量和流量测量。差压测量变送器主要分为液位测量和流量测量。
●一体化高温变送器的延伸理解液位传感器基于所测液体静压与该液体的高度成比例的原理,基于所测液体静压与该液体的高度成比例的原理,采用先进的隔离型扩散硅敏感元件或陶瓷电容压力敏感传感器,将静压转换为电信号,散硅敏感元件或陶瓷电容压力敏感传感器,将静压转换为电信号,再经过温度补偿和线性修正,转化成标准电信号。
●一体化高温变送器通过平衡电路将这个微小的电容变化转化成标准的电流(或电压)输出,从而便得到了与压力变化成线性关系输出的电流(或电压)信号。输出,从而便得到了与压力变化成线性关系输出的电流(或电压)信号。电感式变压器的工作原理也是类似的。
●采用硅橡胶或环氧树脂密封结构,因此耐震、耐湿、适合在恶劣的现场环境安装使用。
●现场安装在热电偶、热电阻的接线盒内使用,直接输出4-20mA、0-10mA的输出信号。这样既节约了昂貴的补偿导线费用,又提高了信号远距离传输过程中的抗干扰能力;
●热电偶变送器具有冷端温度自动补偿功能;
●精度高、功耗低,使用环境温度范围宽,工作稳定可靠;
●适用范围广、既可以与热电偶、热电阻形成一体化现场安装结构,也可以作为功能模块安装在检测设备中和仪表盘上使用;
●智能型温度变送器可通过HART调制解调器与上位机通讯或与手持器和PC机对变送器的型号、分度号、量程进行远程信息管理、组态、变量监测、校准和维护功能;
●智能型温度变送器可按用户实际需要调整变送器的显示方向,并显示变送器所测的介质温度、传感器值的变化、输出电流和百分比例。
●超小型(模块φ44×18)一体化,通用性强
●二线制4~20mADC输出。传输距离远,抗干扰能力强。
●冷端、温漂、非线形自动补偿。
●测量精度高,长期稳定性好。
●温度模块内部采用环氧树脂浇注工艺,适应于各种恶劣和危险场所使用。
●一体化设计,结构简单合理,可直接替换普通装配式热电偶、热电阻。
●机械保护IP65。
●采用热电偶温变,可免用补偿导线,降低成本
●液晶、数码管、指针等多种指示功能方便现场适时监控。
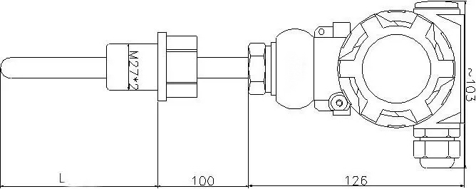
●现场环境温度>70℃时,变送器和现场显示仪表可采用分离(隔离)式安装。如条件不允许可采用延长保护管长度的方法以达到保护温度变送器的目的。
●防爆等级:dIIBT4、dIIBT5。CT4.CT6
●防护等级:IP54,IP65
●可以与热电偶、热电阻形成一体化现场安装结构,也可以作为功能模块安装在检测设备中和仪表盘上使用。
●类别SBW模块式温变SBW一体化温变
●准确度0.2%F.S0.5%F.S
●输入热电偶:B、S、T、K、J
●热电阻:Pt100、Pt10、Cu100、Cu50
●输出二线制4-20mADC或者三线制4-20mADC
●使用温度-25-85℃(一体化LCD表头时0-60℃)
●温度影响≤0.05%/℃
●湿度5-95%RH
●现场显示无3 1/2LED31/2LCD0-100%等分刻度
●显示精度无数字式:0.5级指针式:2.0级
●负载能力<600Ω(额定负载250Ω)
●外形尺寸44×1870×100(中继器)
1、可通过HART调制解调器与上位机通讯或与手持器和PC机对变送器的型号、分度号、量程进行远程信息管理、组态、变量监测、校准和维护功能;
2、可按用户实际需要调整变送器的显示方向,并显示变送器所测的介质温度、传感器值的变化、输出电流和百分比例;
3、采用硅橡胶或环氧树脂密封结构,因此耐震、耐湿、适合在恶劣的现场环境安装使用。
4、现场安装在热电偶、热电阻的接线盒内使用,直接输出4-20mA、0-10mA的输出信号。这样既节约了昂贵的补偿导线费用,又提高了信号远距离传输过程中的抗干扰能力;
5、热电偶变送器具有冷端温度自动补偿功能;
6、精度高、功耗低,使用环境温度范围宽,工作稳定可靠;
7、适用范围广、既可以与热电偶、热电阻形成一体化现场安装结构,也可以作为功能模块安装在检测设备中和仪表盘上使用;

| 类别 | 材质 | 分度号 | 测量范围 |
| 热 电 偶 | 镍铬-康铜 | E | 0-1000℃范围内任选 |
| 镍铬-镍硅 | K | 0-1300℃范围内任选 | |
| 铂铑10-铂 | S | 0-1600℃范围内任选 | |
| 铂铑30-铂铑6 | B | 0-1800℃范围内任选 | |
| 铜-康铜 | T | 0-400℃范围内任选 | |
| 铁-康铜 | J | 0-1200℃范围内任选 | |
| 热 电 阻 | 铜热电阻 | Cu50 | -50-+150℃范围内任选 |
| 铜热电阻 | Cu100 | -50-+15℃范围内任选 | |
| 铂热电阻 | Pt100 | -200-+600℃范围内任选 |
| SBW | 温度变送器 | |||||
| 类别 | R | 热电偶 | ||||
| Z | 热电阻 | |||||
| 传感器 | 1 | 适配K型热电偶/热电阻适配Pt100 | ||||
| 2 | 适配E型热电偶/热电阻适配Cu100 | |||||
| 3 | 适配J型热电偶/热电阻适配Cu50 | |||||
| 4 | 适配B型热电偶 | |||||
| 5 | 适配S型热电偶 | |||||
| 6 | 适配T型热电偶 | |||||
| 7 | 适配N型热电偶 | |||||
| 8 | 用户自定 | |||||
| 电路类别 | 0 | 隔离型 | ||||
| 1 | 非隔离型 | |||||
| 安装方式 | 0 | 常规型 | ||||
| 1 | 专用型 | |||||
| 2 | 挂壁型 | |||||
| 3 | 导轨型 | |||||
| 温度变送器 | 0 | 常规型 | ||||
| 1 | 智能型 | |||||
| 2 | 数显型 | |||||
| 3 | 指针型 | |||||
| 4 | 智能数显型 | |||||
| 5 | 智能指针型 | |||||
| 6 | 带HART协议型 | |||||